Adam-Opel-Straße 4, 38112 Braunschweig

+49 531 21 12 0

ALTERNATIVE ENERGIEN

Mit unseren spezifisch zugeschnittenen Energie-Verteilungen übernehmen wir häufig eine Schlüsselrolle.

 

ALTERNATIVE ENERGIEN

Nutzen Sie unsere Erfahrungen mit Energieverteilern bei unterschiedlichsten Anwendungen im Gewerbe:

Photovoltaikanlagen,  BHKW,  Biogasanlagen,  Energiespeicher und weitere Anlagen.

Drei Puzzleteile mit Symbolen für alternative Energien: ein Atomkraftwerk, ein Solarpanel und eine Windkraftanlage., darunter Illustration zeigt esa als Vermittler zwischen EVU, Betreiber, Anlagenerrichter und Elektroinstallateur mit Symbolen für Strom, Solarenergie und Wasserstoffspeicher.

In den vergangenen Jahren konnten wir bei der Errichtung von Anlagen mit alternativen Energiequellen öfter feststellen, dass die Übernahme der Verantwortung

zwischen den beteiligten Unternehmen „undefiniert pendelte“.

Somit verzögerten sich unnötig die fälligen Entscheidungen und letztendlich die Realisierung.

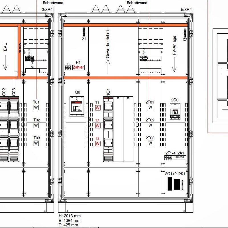
Hier sehen Sie 3 Beispielbilder von Verteilern mit alternativen Energiequellen (bitte klicken):

Wir können Sie in elektrotechnischer Hinsicht unterstützen,  zum Beispiel bei der:
  • Definition der jeweiligen Energie-/Verteilungsleistungen mit daraus resultierenden Folgen
  • Platzierung und Aufteilung der Verteilungen vor Ort
  • Erforderliche Leitungsquerschnitte und Art der Messleitungen zwischen den Anlagenteilen
  • Sind Reserven, bzw. zukünftige Ausbauten realisierbar
  • Berücksichtigung und Abgleich der allgemein üblichen Vorschriften
  • Beachtung der maßgebenden Bedingungen des zuständigen EVU’s
  • Zugehörige Definition der Mess- und Abschaltanforderungen
  • Wenn nötig, Klärungen mit dem Elektro-Versorgungs-Unternehmen
  • Bei Bedarf auch Besichtigungen und Klärungen vor Ort


Zahlreiche Referenzen auf Anfrage.


Was wollen Sie realisieren? 

Rufen Sie uns einfach unverbindlich an.